Contact Agent:
16 Market Place
Kirkbymoorside
York
North Yorkshire
YO62 6DA
01751 431107
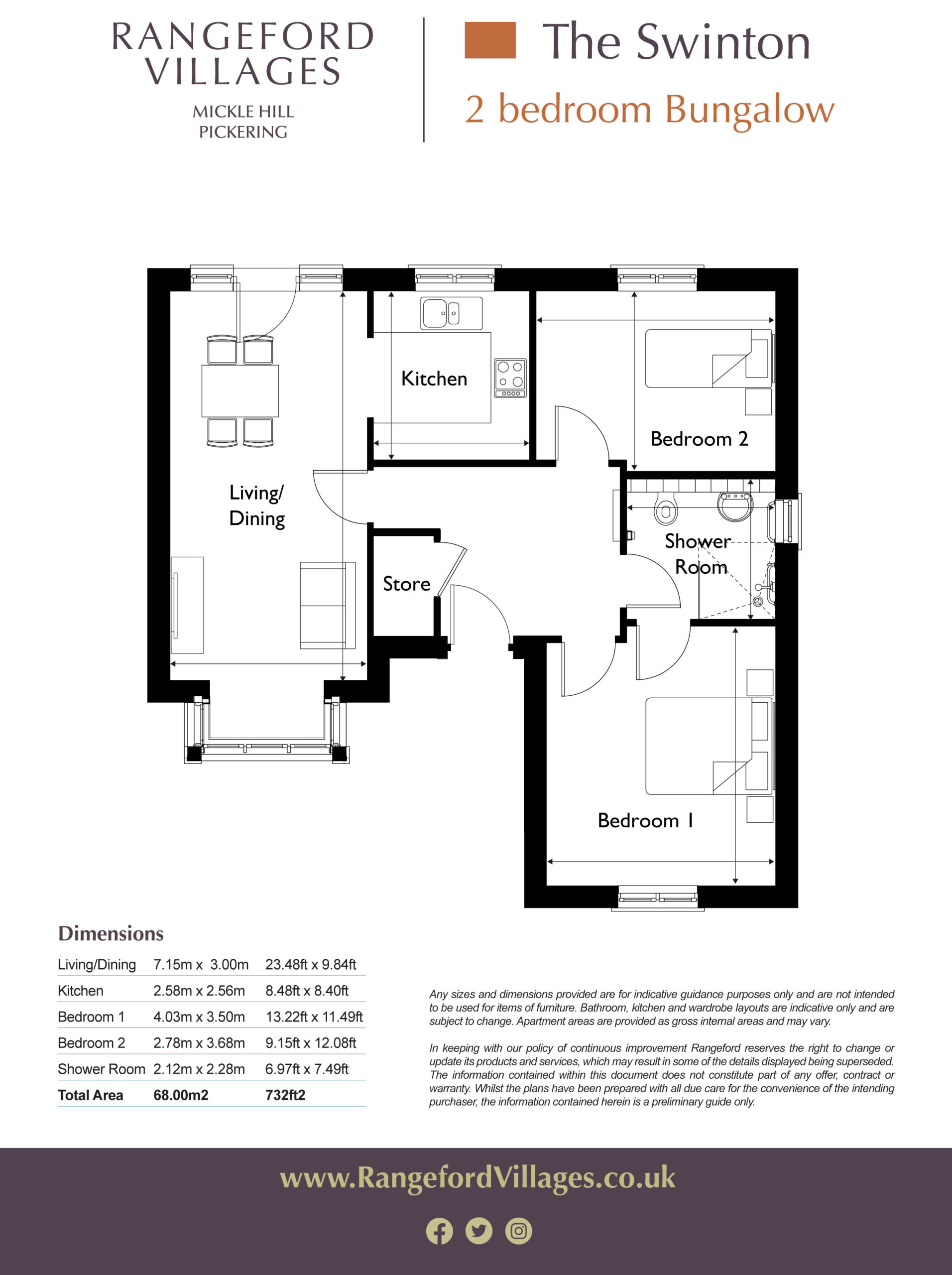
Mickle Hill, Pickering, YO18 7NB
- Retirement Property, Terraced Bungalow
- 2
- 1
- 1
Key Features:
- RETIREMENT BUNGALOW
- Purpose built retirement village for the over 60's
- Two bedroom mid terraced bungalow with stone elevations
- Double aspect with an exceptional level of privacy to the private amenity area
- Kitchen/living room/dining area
- Shower room accessed from bedroom one and hallway
- Gas fired centrally heated and double glazed
- Sunny disposition, excellent internal daylighting
- Completely redecorated and carpeted
- Designated car standing area
- Situated on the periphery of the development with splendid views over adjoining countryside
- Set in the landscaped grounds of Mickle Hill and situated close to the Pavilion which is ideal to access the activities and facilities available
- The Pavillion boasts a splendid range of facilities
- Cafe Bistro, Residents Lounge, Licensed Bar, Convenience Store
- Beauty Salon, Gym, Library & IT Bar
- Cinema Room & Activities Room
- Bespoke care options are available with 24 hour staffing.
- Guest Suite
- Operator Rangeford Villages
- Contact Peter Illingworth 01751 475557 or Sales Office at Mickle Hill 01751 245000
Description:
**RETIREMENT BUNGALOW - PURPOSE BUILT RETIREMENT VILLAGE FOR THE OVER 60's**
The development known as Mickle Hill is purpose built as a retirement village for the over 60’s. No 36 is a luxury two bedroom mid terrace of three, bungalow with a double aspect that offers an exceptional level of privacy to the private amenity area and an enviable sunny disposition providing excellent internal daylighting.
Situated on the periphery of the development with splendid views over adjoining countryside, with a designated car standing. The bungalow has been completely re-decorated and carpeted. Set in the landscaped grounds of Mickle Hill and situated close to the Pavilion which is ideal to access the activities and facilities available. The Pavilion is the real hub of the site and boasts an excellent range of facilities that might to some extent be expected to be found on a cruise ship. Including: Cafe Bistro, Residents Lounge, Licensed Bar, Convenience Store, Hair and Beauty Salon, Equipped Gym, Library, Cinema Room, Activities Room, Guest Suite as well as Landscaped Gardens. Bespoke care options are available with 24 hour staffing.
To the front are well stocked flower beds, together with a part enclosed patio area to the rear and paved sitting out area.
The ancient market town of Pickering has a good range of local amenities and is home to the North York Moors Railway. The Great Dalby Forest and the North York Moors National Park are within a short drive. The ancient City of York and the coastal resorts of Scarborough and Whitby are easily commutable.
Tenure: We understand the property to be leasehold with a term of 125 years from October 2015.
Service Charge: The monthly service charge for the bungalow is £360.19 per month until 30th June 2026 this changes annually. This includes the upkeep and maintenance of the communal areas including: gym, estate roads and parking and landscaped grounds, window cleaning of communal areas and external windows of homes, building insurance and communal areas, corporate management services and support. Serviced lifts to all floors. Utility costs for communal areas.
Village manager and supporting team. Safety and security: emergency call system.
Wellbeing Charge: £278.66 per month until 30th June 26, this includes 24-hour emergency support response and emergency services co-ordination, help in an emergency and co-ordination of activities and events programme.
A contingency fund contribution is payable upon re-sale. Details available from the sales team at Mickle Hill.
Ground Rent: £453.48 per annum. The Ground Rent payable will increase in line with the Retail Price Index every 5 years from 1st October 2015.
Note: Please contact our office for full details of the Key Facts for Leaseholders
Energy Performance Rating: Band C
Property Tax: Band C
Broadband: Basic 16 Mbps, Superfast 80 Mbps, Ultrafast 2,000 Mbps
Mobile Coverage: EE, Vodafone, Three, O2
Satellite: EE, BT, Sky, Virgin
Photography: By Peter Illingworth
HMRC: It is a legal requirement to identify purchasers for the Proceeds of Crime Act/Anti-Money Laundering/ Anti Terrorism Legislation etc. For these purposes this service is contracted out to Landmark Estate Agency Services for which they will apply a charge.
Need to sell your own property? Contact Peter Illingworth on 01751 475557 for no-obligation advice.
Viewing: Strictly by appointment through the agents Kirkbymoorside Office, 16, Market Place, Pickering, YO62 6DA. Tel: 01751 475557 or Rangeford Villages Pickering, Mickle Hill Tel (01751) 245000
Note: Please contact our office for full details of the Key Facts for Leaseholders
Energy Performance Rating: Band B
Property Tax: Band C
Broadband: Basic 16 Mbps, Superfast 80 Mbps, Ultrafast 10,000 Mbps
Mobile Coverage: EE, Vodafone, Three, O2
Satellite: BT, Sky, Virgin
Photography: By Peter Illingworth
HMRC: It is a legal requirement to identify purchasers for the Proceeds of Crime Act/Anti-Money Laundering/ Anti Terrorism Legislation etc. For these purposes this service is contracted out to Landmark Estate Agency Services for which they will apply a charge.
Need to sell your own property? Contact Peter Illingworth on 01751 475557 for no-obligation advice.
Viewing: Strictly by appointment through the agents Kirkbymoorside Office, 16, Market Place, Pickering, YO62 6DA. Tel: 01751 475557 or Rangeford Villages Pickering, Mickle Hill Tel (01751) 245000.



















